|

طراحی داخلی و پلان یک خانه 160 متری سه خواب؛ به علاوه بهترین ایده دکوراسیون داخلیش

در این مطلب به ریز جزئیات یک منزل سه خوابه 160 متری میپردازیم که فضایی بزرگ دارد با امکاناتی فول که در یک خانه با متراژ متوسط میشد طراحی کرد

لینک کوتاه کپی شد

شایانیوز- در این پروژه، با تمرکز ویژه بر طراحی داخلی یک واحد سه خوابه به مساحت ۱۶۰ متر مربع، به تحلیل جزئیات فضاهای مختلف خانه میپردازیم. از سالن نشیمن و آشپزخانه گرفته تا اتاق کودک و اتاق خواب مستر. این خانه با استفاده از پلان هوشمندانه و طراحی کاربردی، به گونه ای اجرا شده که هم جلوه زیبایی شناسانه و هم کارایی روزمره را به بهترین شکل ممکن فراهم میکند. در ادامه، با استفاده از تصاویر واقعی از طراحی داخلی و تحلیل دقیق پلان ساختمان، هر بخش از فضاها را به طور مفصل بررسی میکنیم. اگر به دنبال ایده های کاربردی و الهام بخش برای دکوراسیون داخلی خانه سه خوابه ۱۶۰ متری خود هستید، این پروژه میتواند به عنوان یک راهنمای جامع و مفید برای شما عمل کند.

IMG_20250807_083107

آنالیز طراحی داخلی خانه سه خوابه ۱۶۰ متری

۱- ورودی خانه با طراحی مدرن و نورپردازی خطی، از همان ابتدا احساس خوش آمدگویی را منتقل میکند. در این قسمت، ترکیب رنگ های خنثی همراه با استفاده از متریال چوب، فضایی گرم و در عین حال مینیمال ایجاد شده است که جلوه ای دلپذیر به ورودی میبخشد.

IMG_20250807_083050

۲- فضای اتاق تلویزیون با دیوار سنگی پشت نمایشگر و نورپردازی مخفی، تمرکز بصری خانه را به خوبی به این کانون مهم جلب میکند. طراحی این بخش با تاکید بر سادگی و عمق، یکی از ویژگی های برجسته و منحصر به فرد در دکوراسیون داخلی خانه سه خوابه ۱۶۰ متری به شمار میرود.

IMG_20250807_083150

۳- نشیمن اصلی با طراحی پلان باز و چیدمانی هماهنگ، به عنوان نقطه مرکزی تعاملات خانوادگی عمل میکند. مبلمان به رنگ طوسی روشن همراه با نور طبیعی گسترده، فضایی روشن و دلباز خلق کرده اند. این قسمت نمونه ای عالی از تعادل و هارمونی در طراحی داخلی خانه سه خوابه ۱۶۰ متری محسوب میشود.

IMG_20250807_083136

۴- فضای ناهارخوری که میان نشیمن و آشپزخانه واقع شده، با میز گرد چوبی خود حالتی صمیمی و گرم به فضا میبخشد. قرارگیری هوشمندانه این بخش، تاثیر بسزایی در تسهیل جریان حرکت و روانی استفاده از فضا در طراحی داخلی خانه دارد.

IMG_20250807_083122

۵- آشپزخانه ای با طراحی مدرن که کابینت های روشن و سطح سنگی آن، تعادل بین زیبایی ظاهری و کارکرد عملی را به خوبی حفظ کرده اند. در این خانه ۱۶۰ متری، آشپزخانه به عنوان نقطه مرکزی زندگی خانوادگی در نظر گرفته شده و فضایی کارآمد و چشم نواز را به وجود آورده است.

IMG_20250807_083204

۶- پنجره های وسیع با ورود نور طبیعی، جلوه ای ویژه به فضا بخشیده اند. تلفیق هوشمندانه نور طبیعی با رنگ بندی دقیق، یکی از عوامل کلیدی در موفقیت طراحی داخلی این خانه محسوب میشود.

IMG_20250807_082940

۷- اتاق سوم با طراحی چندکاره، میتواند به عنوان دفتر کار یا فضای مهمان مورد استفاده قرار گیرد و این انعطاف پذیری، کاربردی بودن طراحی داخلی خانه ۱۶۰ متری را به شکل قابل توجهی ارتقا میدهد.

IMG_20250807_083040

۸- اتاق خواب کودک با استفاده از رنگ های نرم و چیدمان نوآورانه، محیطی هم پرانرژی و هم آرامش بخش برای بازی و استراحت ایجاد کرده است. در طراحی داخلی این خانه ۱۶۰ متری، توجه ویژه ای به نیازهای کودکان در دکوراسیون این فضا شده است.

IMG_20250807_083008

۹- اتاق خواب مستر با بهره گیری از رنگ های گرم و دکوراسیون مینیمال، فضایی آرام و کاملا شخصی را فراهم میکند. در این بخش از طراحی داخلی خانه ۱۶۰ متری، استفاده از بافت های نرم و متریال های طبیعی، جلوه ای خاص و دلنشین به فضا بخشیده است.

IMG_20250807_082952

۱۰- نمایی متفاوت از اتاق مستر که کمد دیواری و نورپردازی غیر مستقیم را به شکلی جذاب به تصویر میکشد. جزئیات دقیق و ظریف مانند دیوارکوب‌ها، به طور چشمگیری در ایجاد شخصیت و هویت طراحی داخلی خانه ۱۶۰ متری نقش آفرینی میکنند.

IMG_20250807_082952

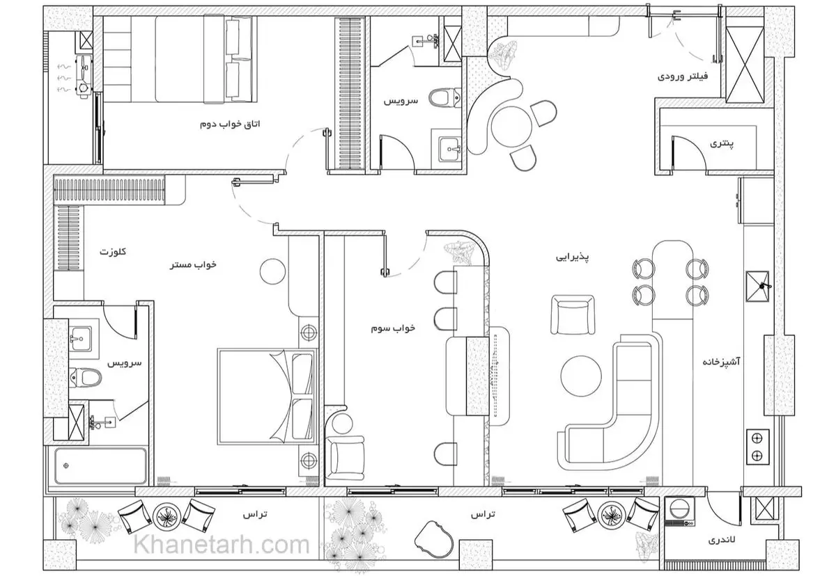
پلان نهایی ساختمان، جانمایی دقیق فضاها و ارتباط منطقی بین بخش های مختلف را به خوبی به نمایش میگذارد. طراحی داخلی این واحد سه خوابه ۱۶۰ متری بر اساس این نقشه، با رویکردی منسجم و هدفمند اجرا شده است. در این پروژه، طراحی داخلی تلاش کرده تا همزمان زیبایی بصری را حفظ کند و عملکرد کاربردی فضاها را به بهترین شکل ممکن تضمین نماید.

IMG_20250807_083324

پیشنهادات ویژه
پیشنهادات ویژه
دانش آراستگی
دیدگاه تان را بنویسید

آشپزی
خانه داری
تفریح و سرگرمی
دنیای سلبریتی ها
نیازمندی‌ها